Ufficio di 250m² - Residenza di lusso - Jardin Exotique Ufficio , Monaco

Vendita
5 900 000 €
Ufficio 250 m² 2
Rif. : V-39

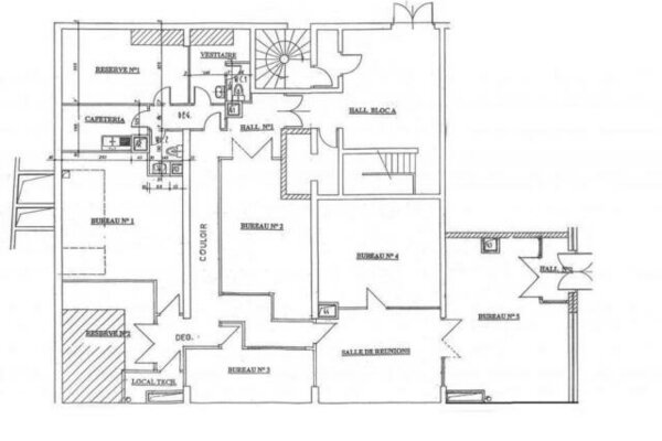
Situato in un edificio di lusso con portineria, tennis, palestra, piscina, pool house e parco, ampio ufficio modulare di 250 m².
L'ufficio si trova al 4° piano che corrisponde al piano terra dell'edificio.
Ottime condizioni, aria condizionata.

L'ufficio è attualmente composto da due ingressi, 6 uffici, 2 dispense, un locale tecnico, una caffetteria, un bagno per le donne e un bagno per gli uomini con guardaroba. 
Lo spazio può essere facilmente organizzato come "open space" o come due uffici distanti con due ingressi separati. 

Convidere su :

Informazioni sul prodotto

Riferimento
V-39
Tipo di transazione
Vendita
Tipo di proprietà
Ufficio
Prezzo
5 900 000 €
Uso misto
Si
Superf. totale
250 m²
Bagni
2
Residenza
Quartiere
Jardin Exotique
Livello
4

Pour plus d'informations, contactez-nous

+377 92 16 58 00

Campi obbligatori

Autres biens